air handling unit noise

Air filter noise is a very common problem in residential heating and air conditioning equipment and there are many causes. Although the noise gets your attention, it may only be a symptom of a much bigger problem. Undersized return grills and return ducts are unfortunately very common. They can also be the most difficult and costly problems to correct. However, there some other solutions you can try. Although they won’t fix the real problem that causes of the noise, they may eliminate the noise. The most common air filters used in residential heating and air conditioning systems are pleated filters and they often don’t fit well into the return grill or air handler. Return air, like electricity and water, takes the path of least resistance and the path of least resistance is often around the air filter instead of through it. Unfortunately when air passes through these narrow spaces between the filter and the filter housing, it can cause whistling or even hissing noises that quickly become very annoying.

Here are 5 Easy Solutions to Whistling and Hissing Noises that Don’t Require a Contractor: Ensure your air filter is the proper size for the application. This often means you have to buy custom sized filters instead of the common sizes supplied at hardware stores but the better the fit, the less likely it is that air will pass around the filter. In the return grill or the filter rack, which is often difficult to reach, you can install foam tape, which will act as a gasket, around the section where the filter sits. This helps to create a tighter fit. However, an easier alternative may be to add foam weather stripping tape to each new air filter you install. Foam tape can often be found at your local hardware store in 1/4 inch or 1/2 thicknesses. There are also many more options available at Amazon or FoamTapes.net Use less efficient filters. Pleated filters have MERV Ratings and the higher the number is the greater the resistance to air flow. Unfortunately, filters with lower MERV ratings won’t clean the air as well as filters with higher ratings.

Change your filter more often. If you only begin hearing air noises after the filter has been installed for some time, you may not be changing your filter often enough. As dirt builds up on the filter air flow resistance increases and this can result in air going around the filter instead of through it. Often when return grills are mounted in the ceiling and the filter is loose it gets sucked up against the duct opening causing a thud every time the fan starts. This can be corrected by building up the inner surface that the filter hits against so that the filter fits firmly into place and there is no space between the filter and the duct opening for the filter to move (as listed in number 2 above). A better solution is to install a return air filter which is designed specifically to be installed in return air grills. This is certainly not every potential problem that may cause your filters to be noisy but these tips will help you to solve some of the most common problems you may encounter.

I hope you found the information in this article helpful. If so, please hit the like button and share it with your friends. The AM range consists of wall mounted and floor standing air handling units with low sound level, low energy consumption and low SFP. With the AM range one or more units are installed in each room. Intake/exhaust can either pass horizontally out of the unit and through an outer wall, or vertically up through the roof.
air handling units catalogue How should units from the AM range be placed in different rooms?
commercial indoor ac units The CV range consist of compact air handling units with low sound level, low energy consumption and flexible installation options.
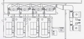
air handling unit valve packageIntake, inlet, extraction, exhaust are ducted and via a short ducting the air is carried to and from one or several rooms.

The DV range today consist of a compact and high pressure air handling unit with low SFP. Intake, inlet, extraction, exhaust are ducted and via a short ducting the air is carried to and from one or several rooms. The noise control package was divided in to the following Test Bed Acoustic Enclosures. Ventilation system with duct silencers with air washer based Air-Handling Unit (AHU). Turbocharger air intake filtration system with intake Silencer. Sound proofing of the control room with sound proof glass windows including air conditioning of the large control room.Home Guides Home Home Improvement Air Conditioner Makes a Squealing Noise Email Reddit Central air conditioning systems include an indoor evaporator unit and air handler as well as a large outdoor unit that contains the compressor. Each time the system starts a cooling cycle, many different mechanical sounds are produced. However, squealing from an air conditioner is not normal, and suggests that there is a mechanical problem within the compressor or the air handler components.

Motor Malfunction A malfunction in the compressor's motor is a common cause of squealing. Typical malfunctions include a loss of lubricant, worn-out bearings, the motor's fan blades rubbing against the housing, bent fan blades, or damaged coil fins. Debris such as a fallen stick that is stuck in the compressor's housing can also result in a squealing noise as the fan's blades hit the stick. Air Handler Problems Problems with the air handler may cause a squealing sound that is louder indoors than outside. The air handler continues to run for a moment after the compressor shuts off, so if the squealing continues after the compressor stops, the problem lies within the air handler. A malfunctioning blower motor, dirty motor, fan motor bearing, or a bent fan blade can all make the air handler squeal. : Air Conditioner Is Loud or Noisy Suggest a Correction How Much of a Percentage Does a Real Estate ... A real estate agent draws a fee based on a percentage ... How to Install a Floor Register on Top of ...